Australia

$265,000 present all offers

32 Queen Street, Chillagoe, Qld 4871

# Location

Description

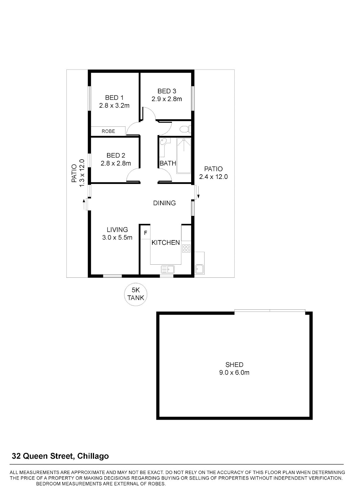
Neat as a pin and taken great care of by Lorna is this three bedroom house plus 3 bay shed in the heart of Chillagoe.

This house started as a shed (as many do in Chillagoe) but is fully approved as a house with three good size bedrooms, one bathroom and combined kitchen dining area leading to the rear patio which compliments the front patio, just with a different view.

The kitchen is easy and functional with gas cooking, pantry and room for a good size fridge.

The lounge opens onto the front patio and is spacious.

Air-conditioned throughout too.

Nice high ceilings too for air flow and cool marble tiles for most of the house.

The bathroom is simple with a shower over the bath and separate toilet.

The block is 1012m2 with rear access to the shed from the Cart Lane.

The shed is great.

Colourbond, three bays, concrete floors, two roller doors

plus room for a workshop or storage. The block is mostly fenced with simple to maintain gardens.

This house comes with a small solar system, rainwater tank, pump and also filter.

On septic and nothing more to do here.

Lorna has lived here for almost 5 years (rent is $265.00per week) and she would love to stay looking after it for years to come.

It suits her and her pooch Max very well.

If you would like to chat about this great property, please give me a call anytime Kendall 0417 167 695.

View More #

Floor Plans

Location

  • Contact the agency

    To request an inspection

  • # Call # Email

Kendall Booth

Agent Name

# Report Listing

Looking for a property?

  • Top listings
  • Investment
  • Development
  • Personal home
  • Price reports
  • Suburb reports

Do you own a property?

  • Place a free listing
  • Services for private advertisers
  • Guide to selling your home
  • Insurance
  • Improve the photos of your listing
  • Value your property for free

Are you a real estate proffesional?

  • Publish your agencies properties
  • Already a client? Log into your account
  • Advertising on Australian Real Estate
  • Australian Real Estate data technology for property insights
  • Real Estate courses